Palacongressi vendesi appartamento su due livelli

In vendita
Appartamento
Rimini (Fiera vecchia)
280.000 €
Descrizione
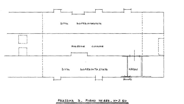
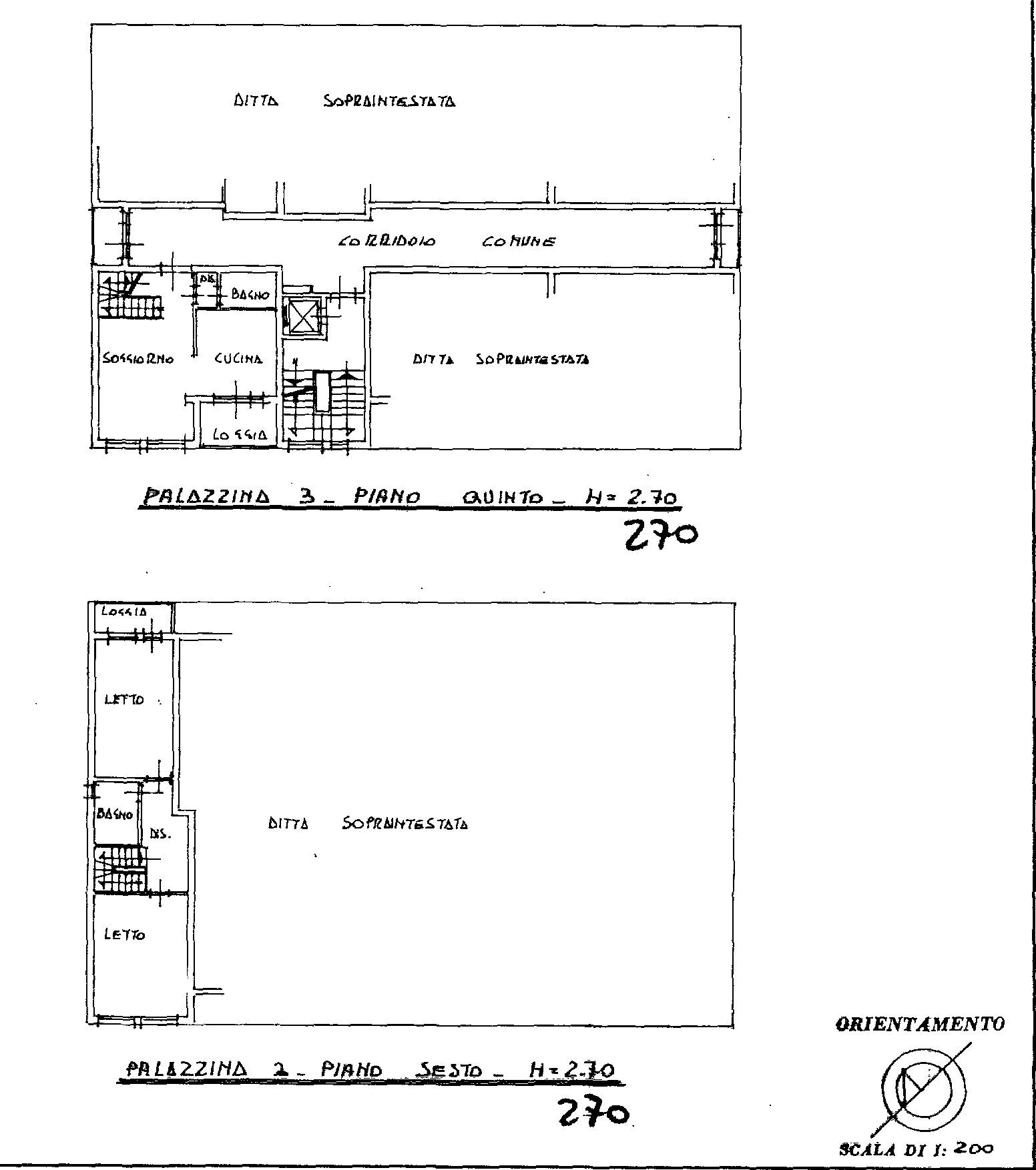
Rimini presso Palacongressi appartamento duplex di 93 mq al quarto piano di una palazzina anni 80, recentemente rinnovato.
Al piano giorno troviamo una luminosa sala con annessa grande cucina abitabile che affaccia su balcone loggiato, bagno, con una scala in muratura saliamo al piano superiore dove troviamo la zona notte composta da un corridoio di disimpegno, 2 grandi camere matrimoniali di cui una con ampia loggia e bagno con vasca.
Box auto al piano terra.
Caratteristiche principali
Codice:
V000043
Città:
Rimini (Fiera vecchia)
Categoria:
Appartamento
Locali:
5,5
Bagni:
2
Mq:
104
Box:
1
Mq Box:
18
Balconi:
2
Mq Balcone:
8
Piano:
6
Classe energetica:
In fase di valutazione
Stato Immobile:
Buono
Grado:
Medio
Posizione:
Centro
Panorama:
Vista Aperta
Orientamento:
Nord Est
Lati Liberi:
1
Giardino:
Comune
Arredi:
Semi Arredato
Tipo Soggiorno:
Sala da Pranzo
Tipo Cucina:
Abitabile
Riscaldamento:
Centralizzato
Tipo Riscaldam.:
Caldaia
Tipo Impianto:
Radiatori
Fonte Energetica:
Gas
Acqua Calda:
Centralizzata
Raffrescamento:
No
Infissi:
Legno Doppio Vetro
Serramenti:
Buono
Persiana:
Tapparella PVC
Pavim. Giorno:
Ceramica
Pavim. Notte:
Gres Porcellanato
Pavim. Cucina:
Ceramica
Pavim. Bagno:
Ceramica
Pavimento:
Ceramica
Tipo Saracinesca:
Manuale
Accesso Disabili:
Nessuna Barriera
Accesso interno disabili:
Non accessibile
Isolamento:
Non presente
Accessori
Ascensore
Parco Condominiale
Passaggio Automobilistico
Cookie preference